Informationen zur Halle
Projektbeschreibung
Ausstattungsmerkmale im Überblick
- Moderne Dreifachsporthalle mit optimalen Voraussetzungen für den Schul- und Vereinssport
- Freundliches und helles Eingangsfoyer als adäquates Entrée für Veranstaltungen
- Auslegung der Technik und WC-Anlagen auf 800 Besucher
- 800 Sitzplätze auf den Tribünen
- 400 weitere Besucherplätze durch mobile Bestuhlung auf der Sportfläche
- Hochwertiger Bühnenbereich
- Lagerräume für gewünschte Nutzung
- Multifunktionsraum im Obergeschoss mit Blick auf den Vorplatz, z. B. für Catering, Schulungen und/oder Sport
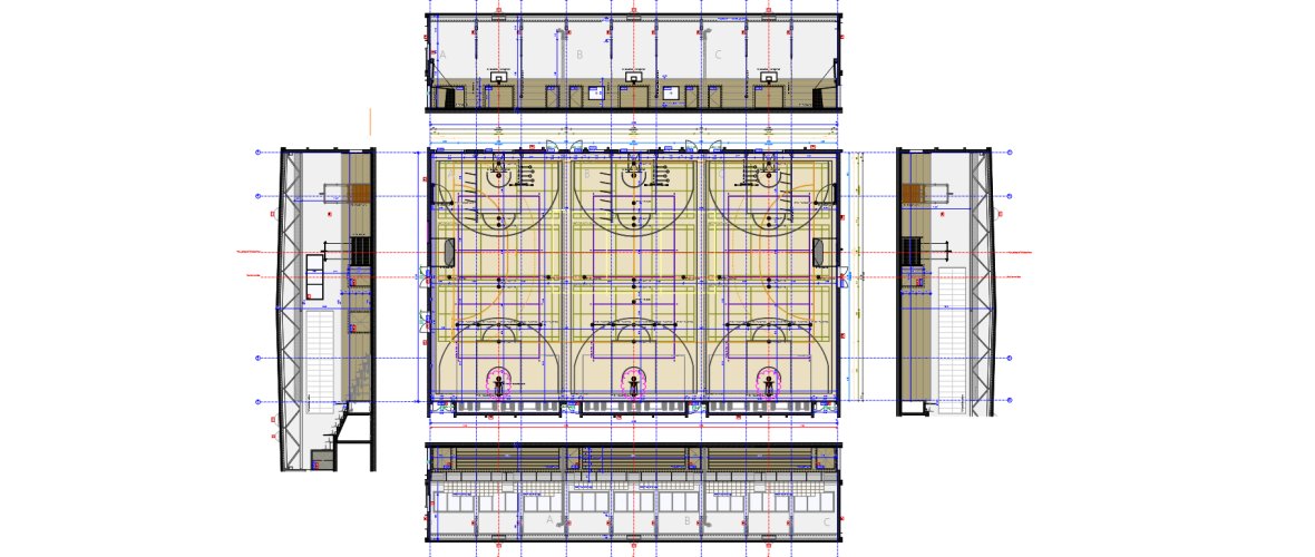
Ansichten / Querschnitte
Außenansichten


Planung Abwicklung

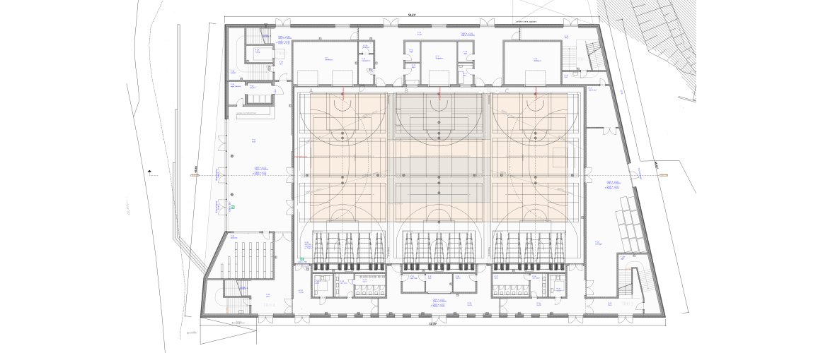
Grundriss Erdgeschoss

Grundriss Obergeschoss

Hallenquerschnitt

Positionierung auf dem Grundstück

